Номер 578 - ГДЗ Математика 5 класс. Мерзляк, Полонский. Учебник. Страница 142

Вернуться к содержанию учебника

Страница 142

575 576 577 578 579 580 581

Вопрос

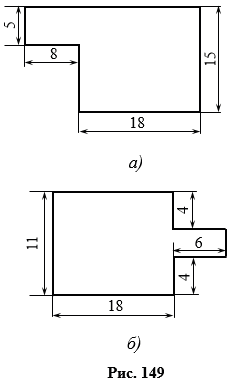
Вычислите периметр и площадь фигуры, изображенной на рисунке 149 (размеры даны в сантиметрах).

Подсказка

Вспомните:

  1. Как найти периметр и площадь прямоугольника.
  2. Сложение чисел.
  3. Умножение чисел.

Ответ


Вернуться к содержанию учебника